| Telefons: | |
|---|---|
| E-pasts: | |
| Vieta | Rīga, Sarkandaugava Sīmaņa iela |
dziviklu 4 ist 94 m2
180 000.00 €
|
Adrese
Riga
|
Ēkas tips
Pirmskara mūra (pirms 1941)
|
|
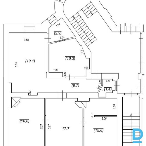
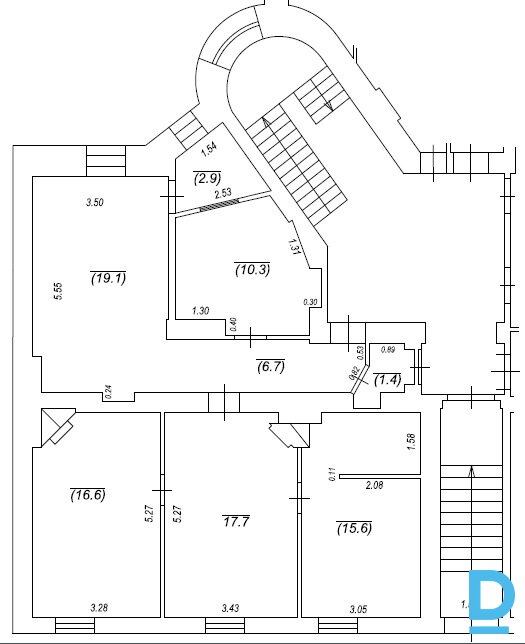
Sanmezgli
2
|
Istabas
4
|
|
Guļamistabas
3
|
Platība, m2
94
|
|
Stāvs
2 / 4
|
|
|
Pārstāvis
Īpašnieks
|
|
|
Nelielā ieliņā, Rīgas vēsturiskajā rajonā, senajā ķieģeļu mājā, ēkas beletāžā ir pieejams četru istabu dzīvoklis 90 m2 platībā. 2023. gadā dzīvoklī tika veikts kapitālais remonts, bet 2025. gadā remonts kāpņu telpā. Dzīvokļa logi atrodas divās pusēs. Šajā dzīvoklī Jūs atradīsiet daudz unikālu roku darba dekoratīvu elementu, kas piešķir tam īpašu šarmu un raksturu. Tas ir harmonisks stilu sajaukums tiem, kas novērtē skaistumu un komfortu. Istabu sienu dekors ir individuālais roku darbs. Dzīvokļa īpatnība ir siena ar “atsegtiem” oriģināliem ķieģeļiem un, protams, kamīns, kas ne tikai rotā, bet arī piepilda telpu ar patīkamu mājas siltumu un mieru. Dzīvoklis ir aprīkots ar visu nepieciešamo dzīvei un komfortam. Viss kas ir dzīvoklī paliek, izņemot personīgās mantas (vai pēc vienošanās). - autonomā gāzes apkure un karstais ūdens (JUNKERS gāzes katls); - filtrs ienākošajam ūdenim un filtrs dzeramajam ūdenim (reversā osmoze); - divas funkcionējošas krāsnis un kamīns; - virtuve ar atpūtas zonu un ēdamistabu; - pieliekamā istaba ar logu; - plaša vannas istaba ar logu, atsevišķi stāvošu vannu un dušas kabīni; - tualete ar dekoratīviem elementiem; - guļamistaba ar ģērbtuvi; - gaiša istaba (pašlaik aprīkota kā darbnīca/kabinets); - istaba ar kamīnu; - priekšnams ar ķieģeļu sienu; Ir privāts, slēgts pagalms ar autostāvvietām. Laba sabiedriskā transporta satiksme. Dzelzceļa stacija “Sarkandaugava” atrodas tikai 3 minūšu attālumā no mājas. No tās līdz Centrālai stacijai 17 minūtes, bet līdz stacijai “Vecāķi” un jūras krastam tikai 14 minūtes. Kā arī šķērsojot dzelzceļu ar kājām, Jūs nonāksiet Mežaparkā. Mežaparkā ir priežu mežs, ezers ar pludmali, zoodārzs, veloceliņi un golfa klubs. Netālu atrodas tirdzniecības centrs Sky&More un sporta klubs MyFitness. Ja Jums ir kādi jautājumi - zvanet |
|
Sludinājuma nr.: 963685
Ievietots: 29.11.2025 / 11:44
Apmeklējumu skaits: 35 Šodien: 1Pēdējās izmaiņas: 1.12.2025 / 8:10












